Bachelor Thesis
KREUZPUNKTKLIMA
Mein Bachelorarbeitsprojekt umfasste einen Entwurf für einem temporären Campus auf der „Campusmeile“ in Frankfurt am Main. Zuerst wurde in einer Konzeptphase die Umgebung untersucht und verschiedene Ansätze geprüft. 9 Wochen lang durfte ich mich dann intensiv mit der Stroh Lehm Modulbauweise auseinander setzen. Die Tragstruktur basiert auf vorgefertigten Holzmodulen, die mit Stroh ausgefacht sind. In Kombination mit Lehmbauplatten und einer klassischen textilen Wandbespannung habe ich meinen Prototyp Holzständermodul erstellt. Mein Ansatz für eine ökologische Baustoffwahl mit funktionaler Innenraumgestaltung.



3D Umgebung in Rhino
Ausarbeitung der Umgebung als umfassende Plangrundlage
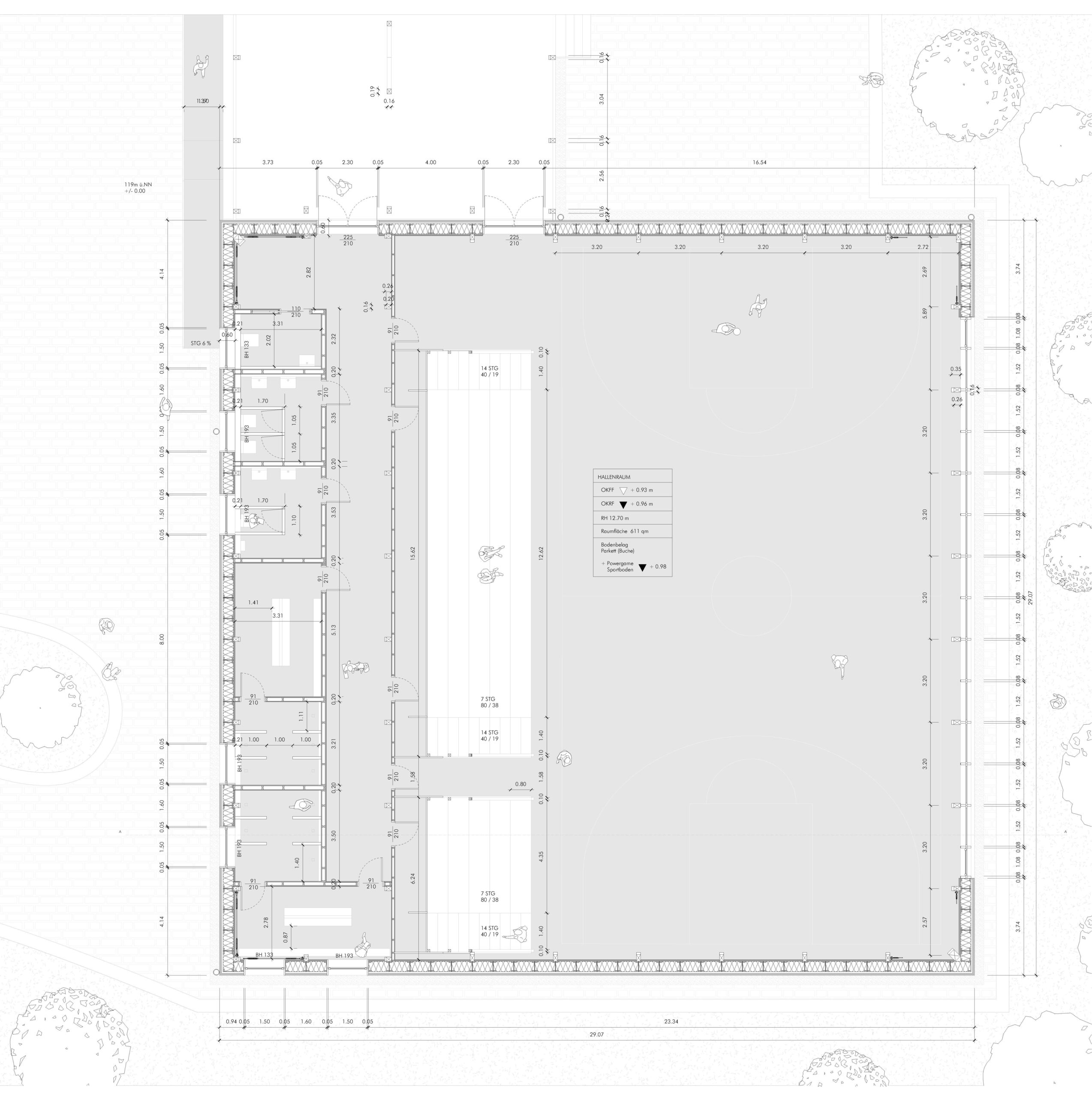
PLAN AUSARBEITUNG
Auszüge aus meiner Bachelorarbeit – Entwurfs und Konstruktionsplanung 1:200 bis 1:20











© Swantje van Zütphen. Alle Rechte an Bildern, Plänen und Grafiken vorbehalten.