ENTWERFEN 4
ON AIR
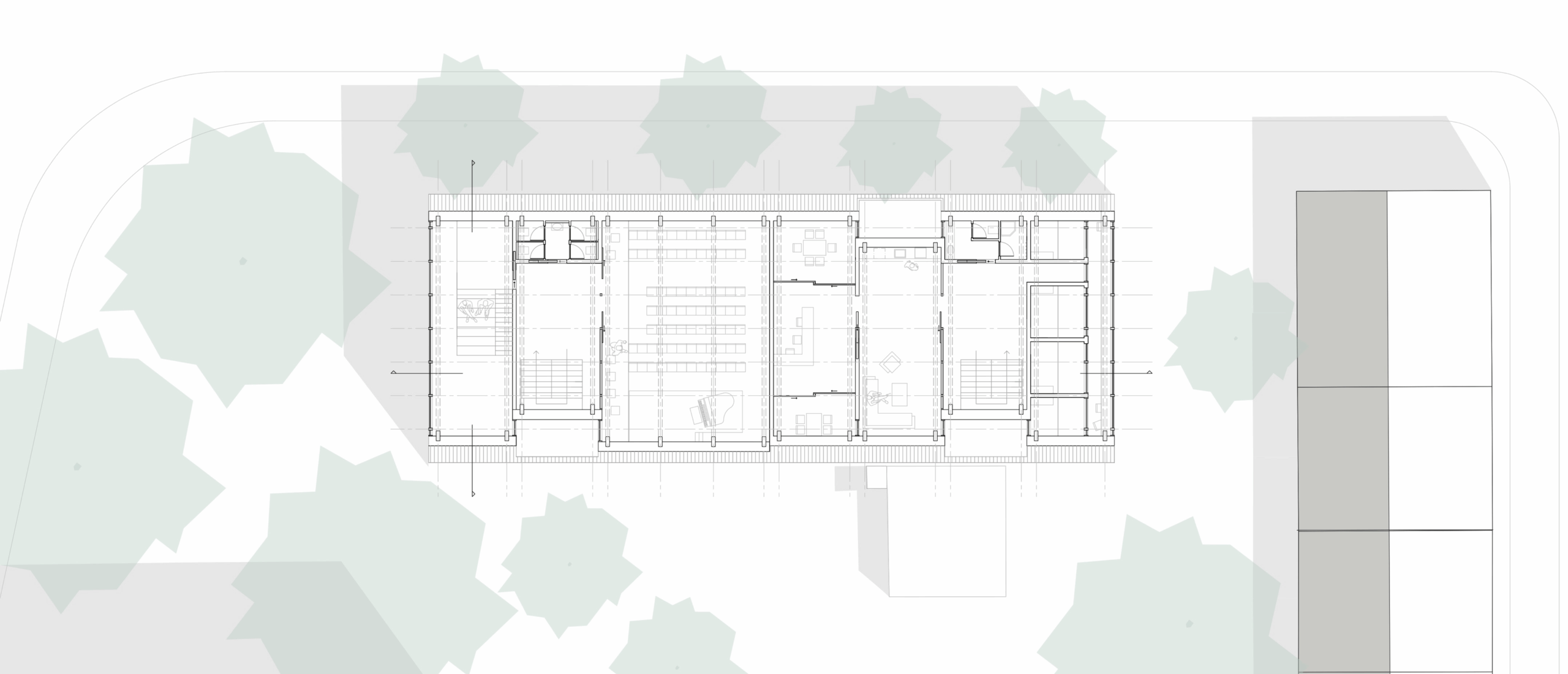
Bei diesem Projekt ging es um die Aufstockung eines bestehenden Bunkers in Frankfurt, der bereits als Tonstudio und Musikproduktionsort genutzt wird. Die neue Aufstockung sollte eine Musikschule beherbergen, einschließlich Proben- und Bühnenräumen, sowie Wohnmöglichkeiten für Studierende. Ziel war es, eine lebendige Umgebung zu schaffen, in der Wohnen, Lernen und Musik machen miteinander verbunden sind und der Bunker zu einem multifunktionalen kulturellen Treffpunkt wird.
(Gruppenarbeit mit Nele Misof und Neva Herrschaft)
















© Swantje van Zütphen. Alle Rechte an Bildern, Plänen und Grafiken vorbehalten.