ENTWERFEN 5
heritage to future
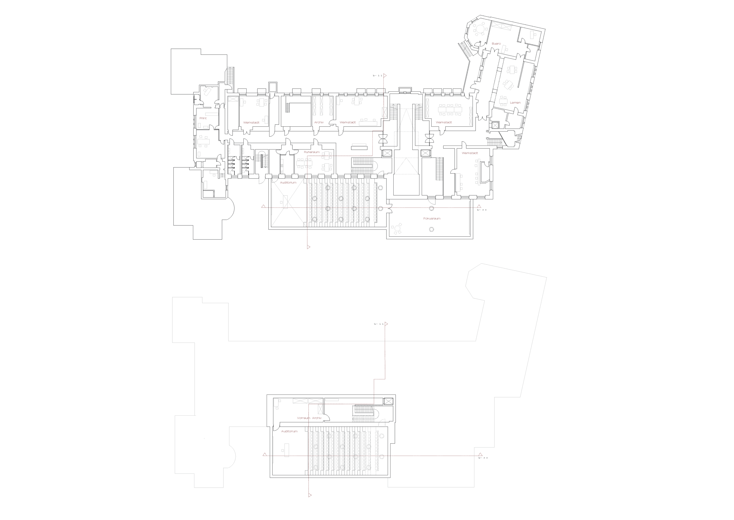
Ausgehend von einer Analyse von Gebäude 9 der Frankfurt University of Applied Sciences, entstand ein Konzept zur räumlichen und funktionalen Weiterentwicklung. Das Gebäude soll weiterhin als Lehrgebäude dienen und in seiner Rolle als Flaggschiff der Hochschule stärker betont werden. Dafür wurde der bislang ungestaltete Vorplatz neu strukturiert und ein Auditorium geplant, das an den bestehenden Keller anschließt. Das Konzept verbindet eine qualitative Aufwertung des Außenraums mit einer gezielten Ergänzung des Gebäudeprogramms.













© Swantje van Zütphen. Alle Rechte an Bildern, Plänen und Grafiken vorbehalten.